合同会社ピア不動産

物件詳細

HOME > 買いたい > 物件詳細

住宅用土地

4月以降解体更地渡しとなります。

所在地
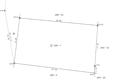
松本市宮田 6-15

価格 2498 万円

土地面積公簿  315.51㎡ (95.44坪)

坪単価26.18万円

担当者より

/

所在地 松本市宮田 6-15 区画名
価格 2498万円 坪単価 坪単価26.18万円
土地面積 公簿  315.51㎡ (95.44坪) 私道負担面積
地目 宅地 用途地域 準工業
建ぺい率 60% 容積率 200%
適する用途 住宅用土地 都市計画法 市街化区域
手数料 引渡 相談
湯権 下水道 公共下水道
通学区 松本市立開明小学校 (350m)
松本市立信明中学校 (1000m)
その他一時金
設備 建築条件なし・プロパンガス・上水道・下水道・電気
接道状況 方角:西 道路幅員:5.5m 公私区分:公道 接面:13.28m 
交通 電車: 篠ノ井線南松本駅 距離1100m 徒歩15分 
高速道路: 長野道 松本I.C. 車15分 
備考
管理番号 013 取引態様 専任媒介
最終更新日 2026-01-27

マップ

※物件位置が表示されていない場合もあります。 正確な位置は取り扱い会社へお問い合わせください

物件のお問い合わせ

物件情報 物件番号:448997 / 住宅用土地 / 松本市宮田6-15 / 価格:2498万円
お名前 必須
電話番号 必須
FAX
※FAXで資料送付をご希望の方は、必ず入力してください。
メールアドレス 必須
資料送付先 郵便番号 
住所 
※郵送で資料送付をご希望の方は、必ず入力してください。
お問い合わせ種別 資料をメールで送ってほしい
資料をFAXで送ってほしい
資料を郵送してほしい
現地を見てみたい
電話で聞きたい
ご質問内容
ご希望の条件、ご予算、その他質問事項があればご記入ください

※お使いのメールサービス、メールソフト、ウィルス対策ソフト等の設定により「迷惑メール」と認識され、メールが届かない場合があります。 (特にGmailやYahoo!メールなどのフリーメールをお使いの方)
その場合は「迷惑メールフォルダー」等をご確認いただくか、お使いのサービス・ソフトウェアの設定をご確認ください。

PAGE
TOP