合同会社ピア不動産

物件詳細

HOME > 買いたい > 物件詳細

住宅用土地

所在地
上田市御所 番外53-281

価格 580 万円

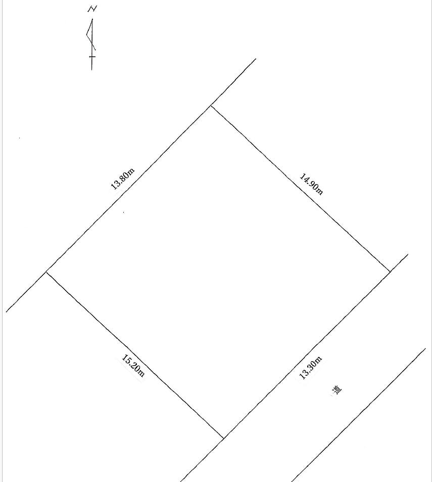
土地面積公簿  132.23㎡ (39.99坪)

坪単価14.51万円

担当者より

/

所在地 上田市御所 番外53-281 区画名
価格 580万円 坪単価 坪単価14.51万円
土地面積 公簿  132.23㎡ (39.99坪) 私道負担面積
地目 宅地 用途地域 1種低層
建ぺい率 50% 容積率 80%
適する用途 住宅用土地 都市計画法 市街化区域
手数料 引渡 即可能
湯権 下水道 公共下水道
通学区 上田市立城下小学校 (1100m)
上田市立第四中学校 (700m)
その他一時金
設備 建築条件なし・都市ガス・上水道・下水道・側溝・電気
接道状況 方角:東南 道路幅員:4m 接面:13m 
交通 電車: 上田電鉄別所線城下駅 距離900m 徒歩13分 
高速道路: 上信越道 上田菅平I.C. 
備考 告知事項あり
現況渡し
管理番号 99 取引態様 一般媒介
最終更新日 2026-03-04

マップ

※物件位置が表示されていない場合もあります。 正確な位置は取り扱い会社へお問い合わせください

物件のお問い合わせ

物件情報 物件番号:445095 / 住宅用土地 / 上田市御所番外53-281 / 価格:580万円
お名前 必須
電話番号 必須
FAX
※FAXで資料送付をご希望の方は、必ず入力してください。
メールアドレス 必須
資料送付先 郵便番号 
住所 
※郵送で資料送付をご希望の方は、必ず入力してください。
お問い合わせ種別 資料をメールで送ってほしい
資料をFAXで送ってほしい
資料を郵送してほしい
現地を見てみたい
電話で聞きたい
ご質問内容
ご希望の条件、ご予算、その他質問事項があればご記入ください

※お使いのメールサービス、メールソフト、ウィルス対策ソフト等の設定により「迷惑メール」と認識され、メールが届かない場合があります。 (特にGmailやYahoo!メールなどのフリーメールをお使いの方)
その場合は「迷惑メールフォルダー」等をご確認いただくか、お使いのサービス・ソフトウェアの設定をご確認ください。

PAGE
TOP